Imagine 65

Apartament cu 4 camere | 81,5 mp | 2 bai | 2 Balcoane | Dunavat 14 | De Renovat

ID: P259313 Bucuresti, Rahova 7
94.900€ 97.900€
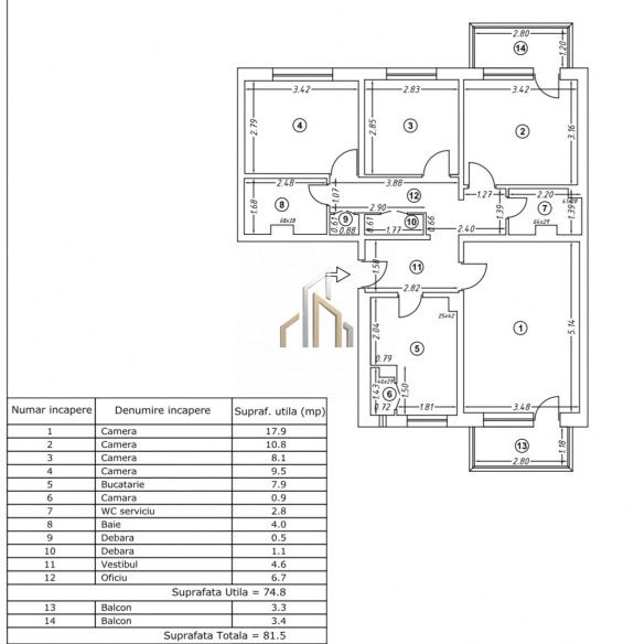
Camere
4
Suprafata utila
74.80 mp
Etaj
Etaj 4
Bai
2
An constructie
1983
Descriere
Va prezentam spre vanzare un apartament de 4 camere, decomandat, situat in zona Rahova, cu acces facil la magazine, restaurante, banci, scoli si mijloace de transport in comun.
Proprietatea este amplasata la etajul 4 din 4 al unui imobil solid, construit in anul 1983.
Apartamentul reprezinta o alegere potrivita pentru un cuplu sau pentru o familie aflata in cautarea unui nou camin, oferind un compartimentaj practic si generos.
Locuinta dispune de doua bai, dintre care una este prevazuta cu cada.
Bucataria este poziționată strategic, fix la intrarea in apartament.
Apartamentul necesita renovare si finisaje interioare, oferind posibilitatea viitorilor proprietari de a-l amenaja dupa propriul gust.
Ambele balcoane sunt închise cu tâmplărie PVC.
Beneficiaza de vedere mixta si este situat pe o strada adiacenta, ferita de zgomotul bulevardului principal.
Se poate obține loc de parcare ADP, iar in zona se gasesc constant locuri disponibile, aspect ce poate fi verificat la fata locului.
Acestea sunt doar cateva dintre avantajele acestei proprietati.

Va invitam la vizionare pentru a descoperi intregul sau potential.
Pentru detalii suplimentare, nu ezitati sa ne contactati.
Caracteristici
  • ID:P259313
  • Nr. camere:4
  • Nr. dormitoare:3
  • S. utila:74.80 mp
  • S. balcoane:6.70 mp
  • S. utila totala:81.50 mp
  • S. construita:87.00 mp
  • Comp.:Decomandat
  • Confort:1
  • Etaj:Etaj 4
  • Nr. bucatarii:1
  • Nr. bai:2
  • Nr. balcoane:2
  • An constructie:1983
  • Structura:BCA
  • Tip imobil:Bloc
  • Regim inaltime:P+4
Specificatii
Curent
Apa
Canalizare
Gaz
CATV
Acces internet
Fibra optica
Termoficare
Aer conditionat
Izolatie Exterior
Ferestre PVC
Bucatarie Nemobilata
Bucatarie Neutilata
Nemobilat
Localizare
Daniel Zeca
Broker/Owner
Esti interesat de aceasta proprietate ?